Manuel Graça Dias + Egas José Vieira arquitectos
Contemporanea Lda
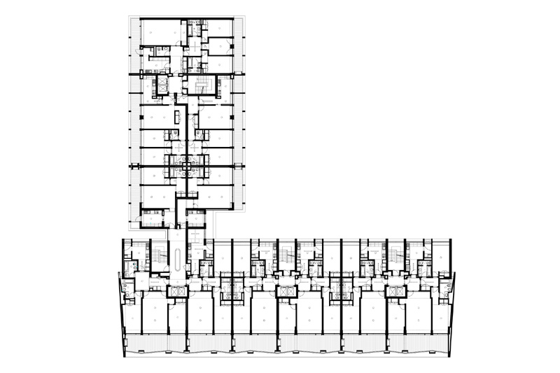
Habitação e comércio na Costa de Caparica (I), Almada, 1998-...
Apartments and shops in Costa de Caparica (I), Almada, 1998-...
1 2 3 4 5 6 7
atelier
studio
contactos
contacts
projectos seleccionados
selected works