Manuel Graça Dias + Egas José Vieira arquitectos
Contemporanea Lda
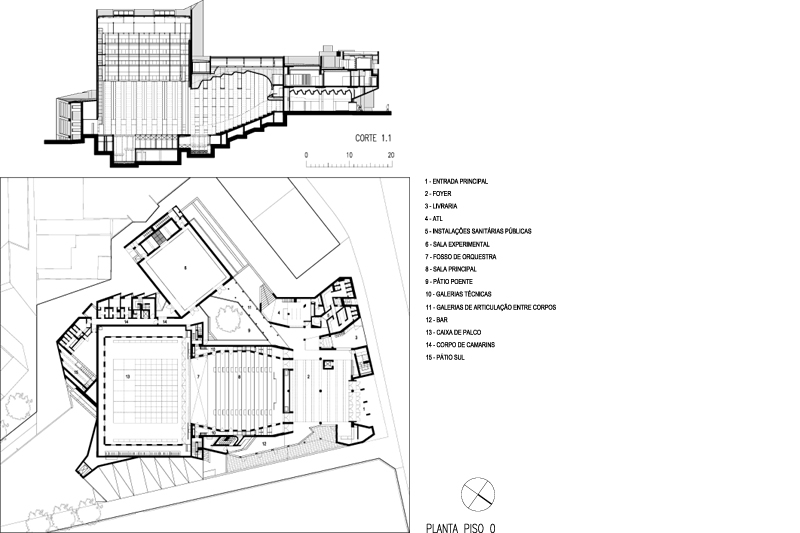
Teatro Municipal de Almada, 1998-2004
Almada Municipal Theatre, 1998-2004
1 2 3 4 5 6 7
atelier
studio
contactos
contacts
projectos seleccionados
selected works